SẢN PHẨM & DỊCH VỤ
Video giới thiệu
Chúng tôi trên Facebook
Thi công biệt thự vườn nhà Anh Trình Bình Chánh
Thi công biệt thự vườn nhà Anh Trình Bình Chánh
0902.328.809

Phối cảnh mặt tiền biệt thự vườn góc nhìn 1

Phối cảnh mặt tiền biệt thự vườn góc nhìn 2

Phối cảnh mặt tiền biệt thự vườn góc nhìn 3

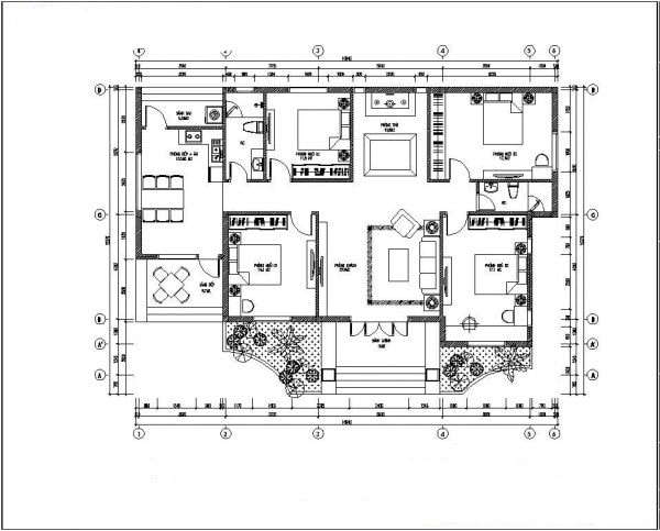
Bản vẽ thiết kế thi công biệt thự vườn
Bình luận
Sản phẩm cùng loại
Thiêt kế thi công biệt thự Chú Đức Củ Chi
0902.328.809
Thi công biệt thự cổ điển Anh Quốc Bình Tân TPHCM
0902.328.809
Thi công nhà phố hiện đại Anh Đạt Phú Quốc
0902.328.809
Xây dựng biệt thự hiện đại Chị Hoàng Oanh Quận 12
0902.328.809
Thiết kế thi công biệt thự vườn chị Ly Tân Bình
0902.328.809
Thiết kế thi công biệt thự vườn chị Trang Tiền Giang
0902.328.809
Thi công biệt thự Chị Trinh Tân Phú
0902.328.809
Xây nhà phố đẹp gia đình Chú Bảo Tiền Giang
0902.328.809
Biệt thự phố anh Linh Đồng Nai
0902.328.809
Thi công xây dựng biệt thự Anh Đồng Long An
0902.328.809

















