SẢN PHẨM & DỊCH VỤ
Video giới thiệu
Chúng tôi trên Facebook
Thiết kế Thi công biệt thự cổ điển Anh Hùng Tây Ninh
0902.328.809

Thiết kế thi công mặt tiền của biệt thự

Thiết kế thi công mặt trước của biệt thự phốii hợp với cảnh quan sân vườn






Thiết kế thi công nội thất bên trong sảnh chính

Một góc khác của sảnh chính ngôi nhà

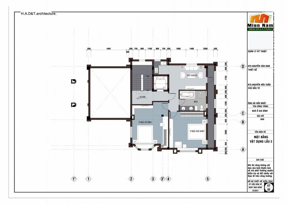
Thiết kế thi công phòng ngủ lớn theo phong cách cổ điển

Một không gian phòng ngủ khác được thiết kế thi công theo phong cách cổ điển

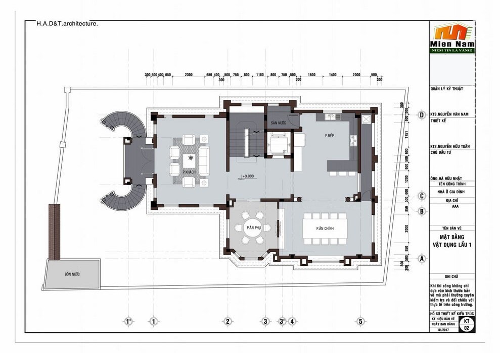
Không gian phòng ăn của gia đình

Một góc khác của không gian phòng ăn
Bình luận
Sản phẩm cùng loại



















